Представляем трактор высококлиренсный БЛ-1500 (Шасси самоходное высококлиренсное) с набором сменных модулей для выполнения широкого спектра технологических операций как в плодовых, так и в декоративных питомниках, а именно:
• междурядную культиваторную обработку почвы;
• междурядную фрезерную обработку почвы;
• сплошное опрыскивание деревьев;
• гербицидную обработку подкронового пространства деревьев.


Трактор высококлиренсный разработан, запотентован и изготовлен ООО «Блюминг» (Республика Беларусь, г. Минск) для выполнения агротехнических операций с высокорослыми культурами.
Данная машина предназначена для работы в садовых и лесных питомниках, чайных плантациях, хлопководстве, табаководстве и т.д, где есть необходимость в большом агротехническом просвете.
Конструктивно машина выполнена на модульной основе, где нижний модуль-высоклиренсная платформа с ходовым аппаратом в виде четырех равновеликих колес и системой привода в виде цепных редукторов- является шасси, на которое установлен силовой модуль с постом управления-колесный трактор МТЗ тягового класса 1.4 с демонтированными передним мостом и задними ведущими колесами.
Верхний м нижний модули соединены друг с другом при помощи болтовых соединений, а выходные валы заднего ведущего моста трактора кинематически связаны с ведущими звездочками цепных редукторов.
Управление машиной осуществляется путем поворота передних вертикальных стоек нижнего модуля вокруг своей оси посредством рулевого управления трактора.
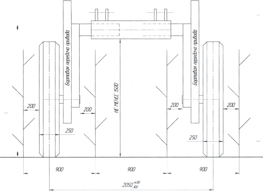
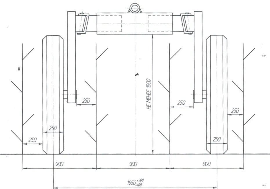
Величина клиренса и размер колеи определяются параметрами нижнего модуля и могут быть подобраны в соответствии с требованиями агротехники для конкретных условий эксплуатации.
Машина сохраняет свою классическую заднюю гидроуправляемую навесную систему и дополнительно оснащена передним навесным устройством параллелограммного типа.
Т.О. машина в целом, сохранив все параметры и функции колесного трактора тягового класса 1.4 тс, приобрела возможность выполнять работы с культурами, рост которых достигает 150 см, не травмируя последних
| Технические характеристики | |||
| Модель трактора | БЛ-1500 | ||
| Колесная формула | 4х2 | ||
| Двигатель, тип | Дизель | ||
| Мощность двигателя, кВт/л.с | 60/80 | ||
| Трансмиссия, тип | Механическая | ||
| Тяговый класс | 1,4 | ||
| Клиренс, мм | 1500 | ||
Характеристика агроколеи
Задний мост

Передний мост


