Представляємо трактор висококліренсний БЛ-1500 (шасі самохідне висококліренсне) з набором змінних модулів для виконання широкого спектру технологічних операцій як в плодових, так і в декоративних розсадниках, а саме:
• міжрядну культиваторну обробку грунту;
• міжрядну фрезерну обробку грунту;
• суцільне обприскування дерев;
• гербіцидну обробку подкронового простору дерев.


Трактор висококліренсний розроблений, запотентован і виготовлений ТОВ «Блюмінг» (Республіка Білорусь, м.Мінськ) для виконання агротехнічних операцій з високорослими культурами.
Дана машина призначена для роботи в садових і лісових розсадниках, чайних плантаціях, бавовництві, тютюнництво і т.д, де є необхідність у великій агротехнічному просвіті.
Конструктивно машина виконана на модульній основі, де нижня модульно-високліренсна платформа з ходовим апаратом у вигляді чотирьох рівновеликих коліс і системою приводу у вигляді ланцюгових редукторов - є шасі, на яке встановлений силовий модуль з постом управління-колісний трактор МТЗ тягового класу 1.4 з демонтованими переднім мостом і задніми ведучими колесами.
Верхній та нижній модулі з'єднані один з одним за допомогою болтових з'єднань, а вихідні вали заднього ведучого моста трактора кинематично пов'язані з ведучими зірочками ланцюгових редукторів.
Управління машиною здійснюється шляхом повороту передніх вертикальних стійок нижнього модуля навколо своєї осі за допомогою рульового управління трактора.
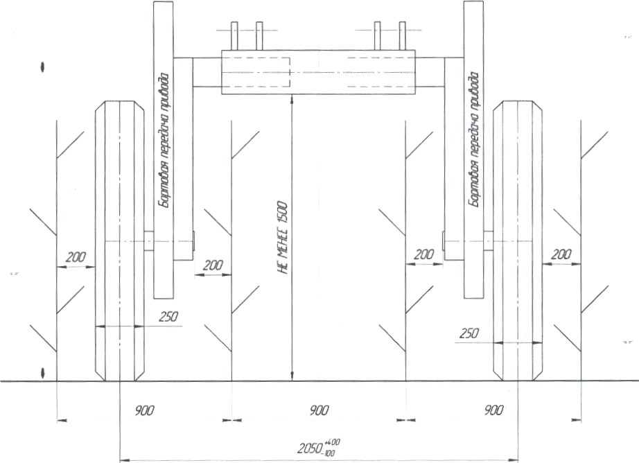
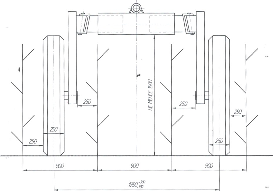
Величина кліренсу і розмір колії визначаються параметрами нижнього модуля і можуть бути підібрані відповідно до вимог агротехніки для конкретних умов експлуатації.
Машина зберігає свою класичну задню гідравлічну навісну систему і додатково оснащена переднім навісним пристроєм параллелограммного типу.
Т.О. машина в цілому, зберегла всі параметри і функції колісного трактора тягового класу 1.4 тс, придбала можливість виконувати роботи з культурами, висота яких досягає 150 см, не травмуючи останніх.
| Технічні характеристики | |||
| Модель трактору | БЛ-1500 | ||
| Колісная формула | 4х2 | ||
| Двигун, тип | Дизель | ||
| Потужність двигуна, кВт/к.с | 60/80 | ||
| Трансмісія, тип | Механическая | ||
| Тяговий клас | 1,4 | ||
| Кліренс, мм | 1500 | ||
Характеристики агроколії
Задній міст

Передній міст


